
MF生料均化庫具有電耗極省,能耗僅為0.432-0.576kwh/t,均化值可達7-10,具有高效節能,基建投資低和操作管理簡便等特點。
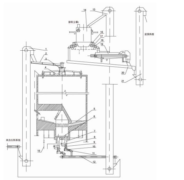
MF生料均化設備采用分配器和六根斜槽呈輻射狀卸入庫內,基本形成水平料層,庫底是錐形,略向中心頃斜,中部有一中心混合室,中心室與庫壁之間的庫底分為6-14個充氣區,每區設3條充氣斜槽和1個卸料孔,卸料時向兩相對區輪流充氣,在卸料口上方出現多股漏斗凹陷,漏斗沿直徑排成一列,隨充氣的交換而旋轉角度,這樣不但產生重力混合,而且生料從庫底卸入中心室后,中心室底部連續充氣,使生料又獲一次均化。









